DYER-SMITH FREY - Interior & Branding - Zurich
DYER-SMITH FREY - Interior & Branding - Zurich
DYER-SMITH FREY - Interior & Branding - Zurich

THE STUDIO

STUDIO - LOUNGE - BAR

We won the pitch for the ENERGY restaurant. The client was delighted with our work – in the end we designed the whole ground floor for Ringier. (kiosk, entrance, corporate lounge, etc.)

Project:  THE STUDIO
Location:  Seefeld Zürich
Client:  Energy Zürich
Year:  2015
Web:  www.thestudio.energy
Link:  http://www.thestudio.energy

Share:  Facebook / Email

Services:
Interior Design conceptualization, planning

 

INTERIOR

The Studio
The Studio
The Studio
The Studio
The Studio
The Studio
The Studio
The Studio
The Studio
The Studio
The Studio
The Studio
The Studio
The Studio
 

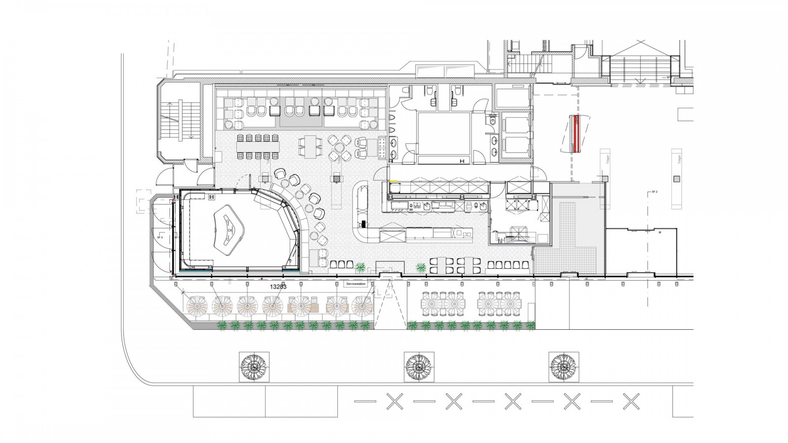
PLANS

The Studio
The Studio
The Studio
 

CONCTRUCTION SITE

DYER-SMITH FREY - Interior & Branding - Zurich
Icon FacebookIcon Instagram

NEWSLETTER