DYER-SMITH FREY - Interior & Branding - Zurich
DYER-SMITH FREY - Interior & Branding - Zurich
DYER-SMITH FREY - Interior & Branding - Zurich

BIG BAHNHOFSTRASSE

RETAIL SHOP

Pretty exciting to build a shop on the Bahnhofstrasse.

Project:  BIG / RETAIL SHOP
Location:  Zurich
Client:  BIG
Year:  2014
Photo credits:  Nico Schaerer
Collaborations:  ATELIER KERN X DYER-SMITH FREY
Link:  www.bigzh.ch

Share:  Facebook / Email

Services:
Interior, furniture, conceptualization, planning, building application, execution, supervision of works, approval and final hand-over

 

INTERIOR

BIG / Retail Shop
BIG / Retail Shop
BIG / Retail Shop
BIG / Retail Shop
BIG / Retail Shop
BIG / Retail Shop
 

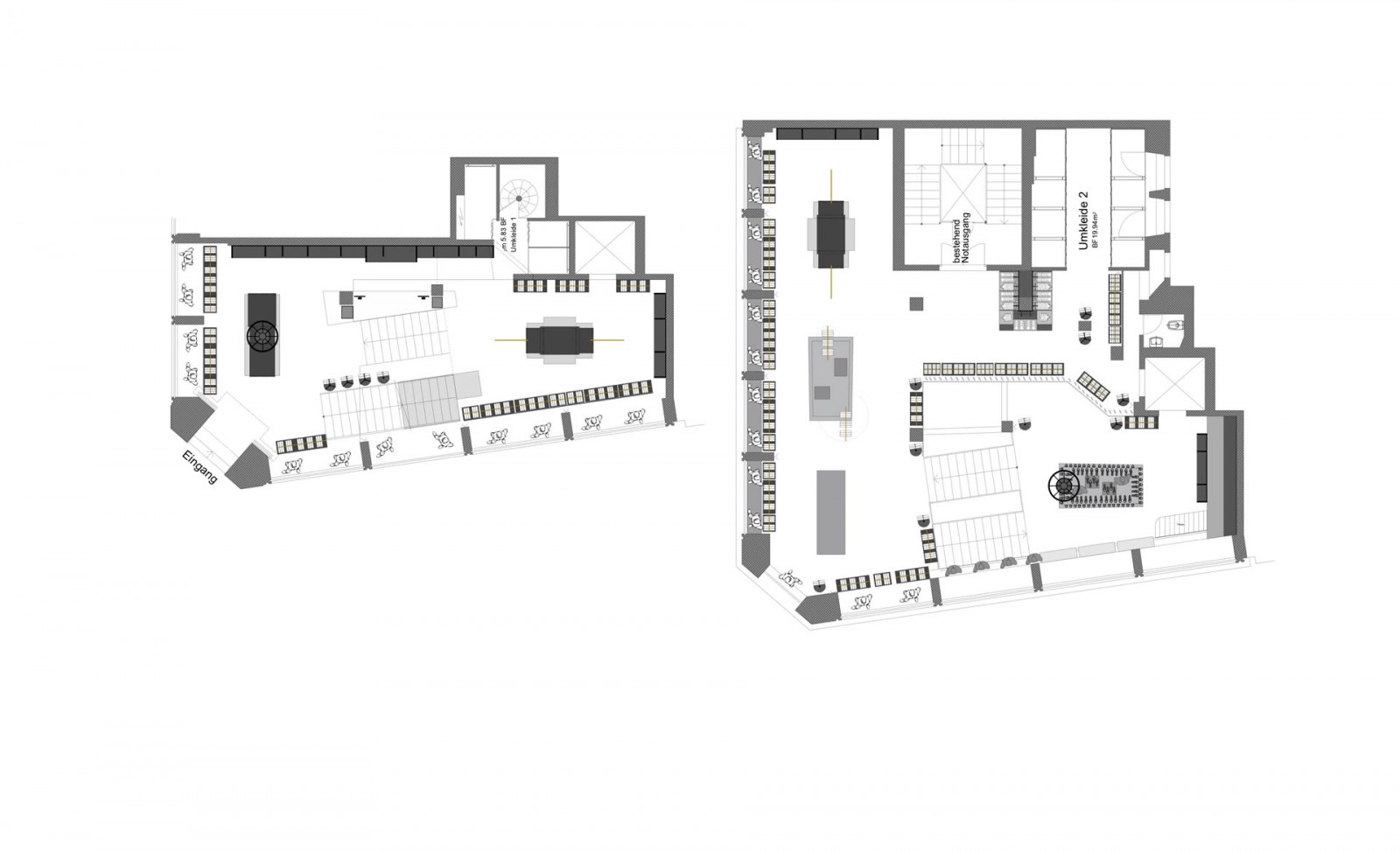
PLANS & MOODBOARD

BIG / Retail Shop
BIG / Retail Shop
BIG / Retail Shop
BIG / Retail Shop
 

CONCTRUCTION SITE

DYER-SMITH FREY - Interior & Branding - Zurich
Icon FacebookIcon Instagram

NEWSLETTER